Back to Search
6880 Juniper Dr, Thornton, CO 80602
6880 Juniper Dr, Thornton, CO 80602 3D Tour
6880 Juniper Dr, Thornton, CO 80602 Explore 3D Tour
6880 Juniper Dr, Thornton, CO 80602
6880 Juniper Dr, Thornton, CO 80602
6880 Juniper Dr, Thornton, CO 80602
6880 Juniper Dr, Thornton, CO 80602

6880 Juniper Dr Thornton, CO 80602

$574,900

ACTIVE
Beds
3
Baths
3
Sqft
2,161
Acres
0.07
Year
2024
Days on Site
10
Property Type
Residential
Sub Type
Single Family
Per Square Foot
$266
Date Listed
Feb 11, 2026

Description of 6880 Juniper Dr, Thornton, CO 80602

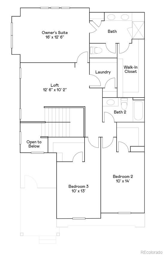
Listing details for 6880 Juniper Dr, Thornton, CO 80602 : **Eligible for special financing – terms and conditions apply – ask for details**Discover modern living at its finest in this spacious two-story Meridian model townhome. The main level welcomes you with a chef-inspired kitchen and an openconcept design that flows effortlessly into the dining area and Great Room, all leading out to a covered deck—your perfect spot for outdoor dining, relaxing, or entertaining. Upstairs, three inviting bedrooms include a luxurious owner’s suite with a spa-style bathroom and walk-in closet. A versatile loft creates an additional space for work, play, or cozy downtime, while the conveniently located laundry room adds everyday practicality. Stylish finishes throughout—such as luxury vinyl plank flooring and sleek quartz countertops—enhance the home’s modern aesthetic. An unfinished basement offers endless possibilities for future customization. Set within a vibrant community, this home provides easy access to premier shopping and dining at the Denver Premium Outlets, along with abundant recreation at the nearby Trail Winds Recreation Center. A lifestyle of comfort, convenience, and connection awaits. Estimated completion date is April 2026.
Listing Updated : 02-20-2026 at 08:02 PM EST

Open Houses

21
Sat, February
11:00 AM - 2:00 PM
22
Sun, February
11:00 AM - 2:00 PM
Home Details
6880 Juniper Dr, Thornton, CO 80602
Status
Active
MLS #ID
REC7623501
Price
$574,900
Bedrooms
3
Bathrooms
3
Square Footage
2,161
Acres
0.07
Year
2024
Days on Site
10
Property Type
Residential
Property Sub Type
Single-Family
Price per Sq Ft
$266
Date Listed
Feb 11, 2026
Community Information for 6880 Juniper Dr, Thornton, CO 80602
Address
6880 Juniper Dr
State
Colorado
Zip Code 80602
County Adams
Subdivision Parterre
School Districts
High School District School District 27-J
Utilities
Sewer
Public Sewer
Water Source
Public
Interior
Interior Features
Breakfast Bar, Eat-in Kitchen, Entrance Foyer, High Ceilings, Kitchen Island, Open Floorplan, Pantry, Primary Suite, Quartz Counters and Walk-In Closet(s)
Appliances
Dishwasher, Disposal, Microwave, Oven and Refrigerator
Heating
Forced Air
Cooling
Central Air
Fireplace
No
Exterior
Exterior
Rain Gutters
Roof
Composition
Garage Spaces
2
Foundation
Slab
HOA
Has HOA
Yes
Services included
None
HOA fee
$185 Monthly
Additional Information
Styles
Price per Sq Ft
$266
Builder Name
Lennar
Listing Provided By

Kris Ceretto, 303-235-0400, Coldwell Banker Realty 56

Source

recolorado, MLS#: REC7623501

Comments
Home Worth Check

Interested in 6880 Juniper Dr, Thornton CO, 80602?

By proceeding, you consent to receive calls, texts and voicemails at the number you provided (may be recorded and may be autodialed and use prerecorded and artificial voices), and email, from The Kenna Real Estate Group about your inquiry and other home-related matters. Msg/data rates may apply. This consent applies even if you are on a do not call list and is not a condition of any purchase.

Location of 6880 Juniper Dr, Thornton, CO 80602

Google Map
Mortgage Calculator
Listing Price
Down Payment
Interest Rate
This beautiful 3 beds 3 baths home is located at 6880 Juniper Dr, Thornton, CO 80602 and is listed for sale at $574,900.00. This home was built in 2024, contains 2161 square feet of living space, and sits on a 0.07 acre lot. This residential home is priced at $266.03 per square foot.

If you'd like to request a tour or more information on 6880 Juniper Dr, Thornton, CO 80602, please call us at 303-955-4220 so that we can assist you in your real estate search. To find homes like 6880 Juniper Dr, Thornton, CO 80602, you can search homes for sale in Thornton , or visit the neighborhood of Parterre , or by 80602 . We are here to help when you're ready to contact us!

Schools Near 6880 Juniper Dr, Thornton, CO 80602

Home Details
6880 Juniper Dr, Thornton, CO 80602
Status
Active
MLS #ID
REC7623501
Price
$574,900
Bedrooms
3
Bathrooms
3
Square Footage
2,161
Acres
0.07
Year
2024
Days on Site
10
Property Type
Residential
Property Sub Type
Single-Family
Price per Sq Ft
$266
Date Listed
Feb 11, 2026
Community Information for 6880 Juniper Dr, Thornton, CO 80602
Address
6880 Juniper Dr
State
Colorado
Zip Code 80602
County Adams
Subdivision Parterre
School Districts
High School District School District 27-J
Utilities
Sewer
Public Sewer
Water Source
Public
Interior
Interior Features
Breakfast Bar, Eat-in Kitchen, Entrance Foyer, High Ceilings, Kitchen Island, Open Floorplan, Pantry, Primary Suite and Quartz Counters
Appliances
Dishwasher, Disposal, Microwave and Oven
Heating
Forced Air
Cooling
Central Air
Fireplace
No
Exterior
Exterior
Rain Gutters
Roof
Composition
Garage Spaces
2
Foundation
Slab
HOA
Has HOA
Yes
Services included
None
HOA fee
$185 Monthly
Additional Information
Styles
Price per Sq Ft
$266
Builder Name
Lennar
Listing Provided By

Kris Ceretto, 303-235-0400, Coldwell Banker Realty 56

Source

recolorado, MLS#: REC7623501

Comments

Homes Similar to 6880 Juniper Dr, Thornton, CO 80602

Thinking of Moving? Must Reads.

HomeThorntonParterre
What's your home worth?
Have a top local Realtor give you a FREE Comparative Market Analysis
Hear From Happy Homeowners
See how we've helped others achieve their real estate goals.
280 reviews on