Back to Search
6812 Arbor Blvd, Thornton, CO 80602
6812 Arbor Blvd, Thornton, CO 80602 3D Tour
6812 Arbor Blvd, Thornton, CO 80602 Explore 3D Tour
6812 Arbor Blvd, Thornton, CO 80602
6812 Arbor Blvd, Thornton, CO 80602
6812 Arbor Blvd, Thornton, CO 80602
6812 Arbor Blvd, Thornton, CO 80602

6812 Arbor Blvd Thornton, CO 80602

$574,600

ACTIVE
Beds
3
Baths
3
Sqft
1,868
Acres
0.09
Year
2026
Days on Site
1
Property Type
Residential
Sub Type
Single Family
Per Square Foot
$308
Date Listed
Apr 28, 2026

Description of 6812 Arbor Blvd, Thornton, CO 80602

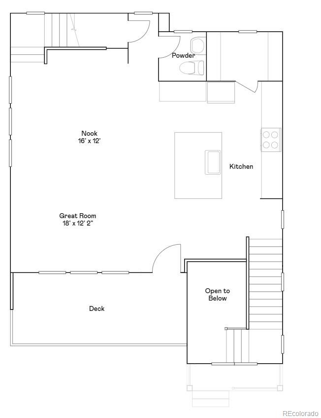
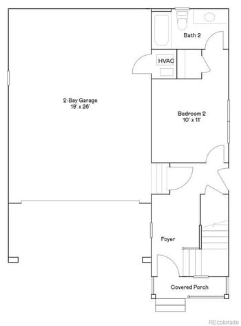
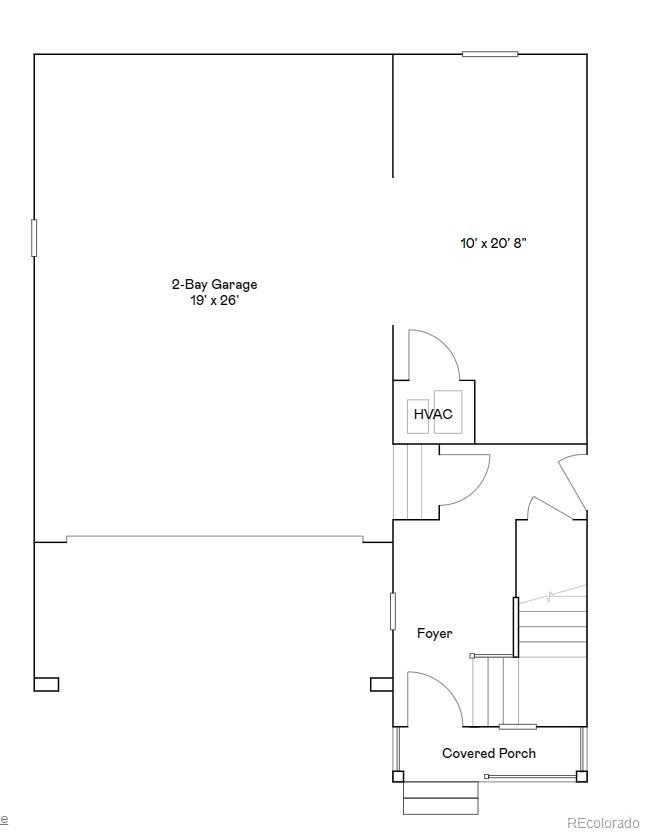
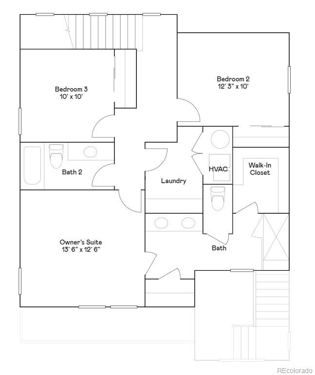
Listing details for 6812 Arbor Blvd, Thornton, CO 80602 : ***Eligible for rates as low as 3.75% special financing when using builder’s preferred lender – terms and conditions apply – ask for details** Welcome to the Skyline Collection by Lennar, where modern design blends seamlessly with everyday comfort. This thoughtfully designed three-story home features a spacious two-bay garage on the entry level, along with additional storage for added convenience. The second floor offers an open-concept layout that connects the kitchen, dining area, and Great Room—creating an inviting space for both daily living and entertaining. Step outside onto the private deck to enjoy fresh air, whether you're unwinding after a long day or hosting guests. Upstairs, all three bedrooms are well-positioned, including a private owner’s suite complete with an en-suite bathroom and walk-in closet. A conveniently located laundry room adds to the home’s practical design. Ideally situated near Denver Premium Outlets for shopping and dining, and just minutes from Trail Winds Recreation Center for fitness and recreation. Estimated completion: September 2026.
Listing Updated : 04-28-2026 at 3:00 PM MDT
Listing Provided By : Kris Ceretto, 303-235-0400, Coldwell Banker Realty 56
Source :

recolorado as distributed by MLS GRID, MLS#: REC6644541

Home Worth Check

Interested in 6812 Arbor Blvd, Thornton CO, 80602?

By proceeding, you consent to receive calls, texts and voicemails at the number you provided (may be recorded and may be autodialed and use prerecorded and artificial voices), and email, from The Kenna Real Estate Group about your inquiry and other home-related matters. Msg/data rates may apply. This consent applies even if you are on a do not call list and is not a condition of any purchase.

Location of 6812 Arbor Blvd, Thornton, CO 80602

Google Map
Mortgage Calculator
Listing Price
Down Payment
Interest Rate

Schools Near 6812 Arbor Blvd, Thornton, CO 80602

Homes Similar to 6812 Arbor Blvd, Thornton, CO 80602

Thinking of Moving? Must Reads.

Source Logo
Based on information submitted to the MLS GRID as of 2026-04-28 at 8:00 p.m. MDT. All data is obtained from various sources and may not have been verified by broker or MLS GRID. Supplied Open House Information is subject to change without notice. All information should be independently reviewed and verified for accuracy. Properties may or may not be listed by the office/agent presenting the information.

HomeThorntonParterre
What's your home worth?
Have a top local Realtor give you a FREE Comparative Market Analysis
Hear From Happy Homeowners
See how we've helped others achieve their real estate goals.
280 reviews on