Back to Search
5645 Saint Patrick Vw, Colorado Springs, CO 80923
5645 Saint Patrick Vw, Colorado Springs, CO 80923 3D Tour
5645 Saint Patrick Vw, Colorado Springs, CO 80923 Explore 3D Tour
5645 Saint Patrick Vw, Colorado Springs, CO 80923
5645 Saint Patrick Vw, Colorado Springs, CO 80923
5645 Saint Patrick Vw, Colorado Springs, CO 80923
5645 Saint Patrick Vw, Colorado Springs, CO 80923

5645 Saint Patrick Vw Colorado Springs, CO 80923

$350,000

ACTIVE UNDER CONTRACT
Beds
3
Baths
3
Sqft
1,685
Acres
0.03
Year
2009
Days on Site
12
Property Type
Residential
Sub Type
Townhouse
Per Square Foot
$208
Date Listed
Jan 24, 2026

Description of 5645 Saint Patrick Vw, Colorado Springs, CO 80923

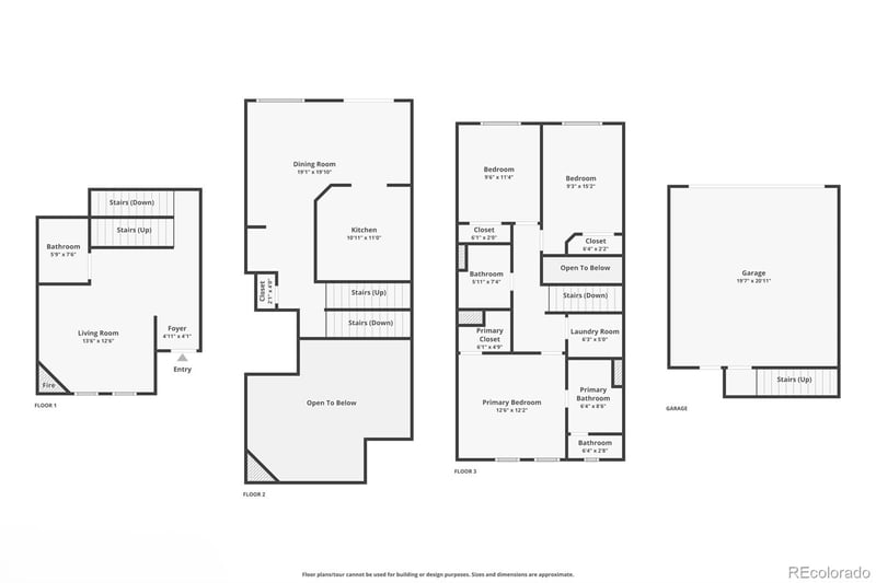
Listing details for 5645 Saint Patrick Vw, Colorado Springs, CO 80923 : Beautifully updated 3 bedroom, 2.5 bathroom townhouse with a 2 car attached garage, ideally located in the quiet Dublin Terrace community. This prime location offers convenient access to shopping, grocery stores, and nearby military bases, while maintaining a peaceful residential atmosphere. The exterior is thoughtfully landscaped with mature shrubs and low maintenance xeriscaping. Inside, the home has been tastefully refreshed with new interior paint throughout, new carpet, luxury vinyl flooring, updated light fixtures, ceiling fans, and toilets. Upon entry, vaulted ceilings and abundant natural light create a bright and inviting first impression. This level features a spacious living room centered around a gas fireplace with a tile surround, complemented by luxury vinyl flooring and a conveniently located powder bath. The main level showcases a well appointed kitchen with granite tile countertops, coordinating cabinetry, and new recessed lighting that adds both style and functionality. The kitchen is equipped with SS side-by-side refrigerator, SS dual sink, SS dishwasher, SS built-in microwave, and a new SS smooth-top electric range/oven. A built-in desk with matching granite tile counters and cabinetry provides an elegant and functional workspace. The dining area opens to a generously sized balcony; an ideal spot to enjoy views of Pikes Peak. A comfortable family room completes this level, offering additional space for everyday living or entertaining. The upper level, also finished with luxury vinyl flooring, includes three bedrooms, two full bathrooms, and a dedicated laundry room. The primary suite features a walk-in closet and an en-suite full bathroom with double vanities. This thoughtfully updated townhouse offers a refined blend of comfort, functionality, and location—an exceptional opportunity in Dublin Terrace!
Listing Updated : 01-29-2026 at 01:00 AM EST
Home Details
5645 Saint Patrick Vw, Colorado Springs, CO 80923
Status
Active Under Contract
MLS #ID
REC7442597
Price
$350,000
Bedrooms
3
Bathrooms
3
Square Footage
1,685
Acres
0.03
Year
2009
Days on Site
12
Property Type
Residential
Property Sub Type
Townhouse
Price per Sq Ft
$208
Date Listed
Jan 24, 2026
Community Information for 5645 Saint Patrick Vw, Colorado Springs, CO 80923
Address
5645 Saint Patrick Vw
State
Colorado
Zip Code 80923
County El Paso
Subdivision Dublin Terrace
Schools
Elementary Freedom
Middle Jenkins
School Districts
High School District Colorado Springs 11
Utilities
Sewer
Public Sewer
Water Source
Public
Interior
Interior Features
Built-in Features, Ceiling Fan(s), Corian Counters, Eat-in Kitchen, Granite Counters, High Ceilings, Primary Suite, Tile Counters, Vaulted Ceiling(s) and Walk-In Closet(s)
Appliances
Dishwasher, Disposal, Dryer, Microwave, Range, Refrigerator, Self Cleaning Oven and Washer
Heating
Forced Air
Cooling
Central Air
Fireplace
Yes
# of Fireplaces
1
Exterior
Exterior
Balcony
Roof
Composition
Garage Spaces
2
Foundation
Slab
HOA
Has HOA
Yes
Services included
None
HOA fee
$253 Monthly
Additional Information
Styles
Contemporary
Price per Sq Ft
$208
Listed By

Darrell Wass, 719-548-8600, REMAX PROPERTIES

Source

recolorado, MLS#: REC7442597

Comments
Home Worth Check

Interested in 5645 Saint Patrick Vw, Colorado Springs CO, 80923?

By proceeding, you consent to receive calls, texts and voicemails at the number you provided (may be recorded and may be autodialed and use prerecorded and artificial voices), and email, from The Kenna Real Estate Group about your inquiry and other home-related matters. Msg/data rates may apply. This consent applies even if you are on a do not call list and is not a condition of any purchase.

Location of 5645 Saint Patrick Vw, Colorado Springs, CO 80923

Google Map
Mortgage Calculator
Listing Price
Down Payment
Interest Rate
This beautiful 3 beds 3 baths home is located at 5645 Saint Patrick Vw, Colorado Springs, CO 80923 and is listed for sale at $350,000.00. This home was built in 2009, contains 1685 square feet of living space, and sits on a 0.03 acre lot. This residential home is priced at $207.72 per square foot.

If you'd like to request a tour or more information on 5645 Saint Patrick Vw, Colorado Springs, CO 80923, please call us at 303-955-4220 so that we can assist you in your real estate search. To find homes like 5645 Saint Patrick Vw, Colorado Springs, CO 80923, you can search homes for sale in Colorado Springs , or visit the neighborhood of Dublin Terrace , or by 80923 . We are here to help when you're ready to contact us!

Schools Near 5645 Saint Patrick Vw, Colorado Springs, CO 80923

Home Details
5645 Saint Patrick Vw, Colorado Springs, CO 80923
Status
Active Under Contract
MLS #ID
REC7442597
Price
$350,000
Bedrooms
3
Bathrooms
3
Square Footage
1,685
Acres
0.03
Year
2009
Days on Site
12
Property Type
Residential
Property Sub Type
Townhouse
Price per Sq Ft
$208
Date Listed
Jan 24, 2026
Community Information for 5645 Saint Patrick Vw, Colorado Springs, CO 80923
Address
5645 Saint Patrick Vw
State
Colorado
Zip Code 80923
County El Paso
Subdivision Dublin Terrace
Schools
Elementary Freedom
Middle Jenkins
School Districts
High School District Colorado Springs 11
Utilities
Sewer
Public Sewer
Water Source
Public
Interior
Interior Features
Built-in Features, Ceiling Fan(s), Corian Counters, Eat-in Kitchen, Granite Counters, High Ceilings, Primary Suite, Tile Counters and Vaulted Ceiling(s)
Appliances
Dishwasher, Disposal, Dryer, Microwave, Range, Refrigerator and Self Cleaning Oven
Heating
Forced Air
Cooling
Central Air
Fireplace
Yes
# of Fireplaces
1
Exterior
Exterior
Balcony
Roof
Composition
Garage Spaces
2
Foundation
Slab
HOA
Has HOA
Yes
Services included
None
HOA fee
$253 Monthly
Additional Information
Styles
Contemporary
Price per Sq Ft
$208
Listed By

Darrell Wass, 719-548-8600, REMAX PROPERTIES

Source

recolorado, MLS#: REC7442597

Comments

Homes Similar to 5645 Saint Patrick Vw, Colorado Springs, CO 80923

Thinking of Moving? Must Reads.

HomeColorado SpringsDublin Terrace
What's your home worth?
Have a top local Realtor give you a FREE Comparative Market Analysis
Hear From Happy Homeowners
See how we've helped others achieve their real estate goals.
280 reviews on