Back to Search
136 Old Post Office Rd, Boulder, CO 80302
136 Old Post Office Rd, Boulder, CO 80302 3D Tour
136 Old Post Office Rd, Boulder, CO 80302 Explore 3D Tour
136 Old Post Office Rd, Boulder, CO 80302
136 Old Post Office Rd, Boulder, CO 80302
136 Old Post Office Rd, Boulder, CO 80302
136 Old Post Office Rd, Boulder, CO 80302

136 Old Post Office Rd Boulder, CO 80302

$2,995,000

ACTIVE
Beds
3
Baths
3
Sqft
4,122
Acres
40.12
Year
1984
Days on Site
21
Property Type
Residential
Sub Type
Single Family
Per Square Foot
$727
Date Listed
Feb 20, 2026

Description of 136 Old Post Office Rd, Boulder, CO 80302

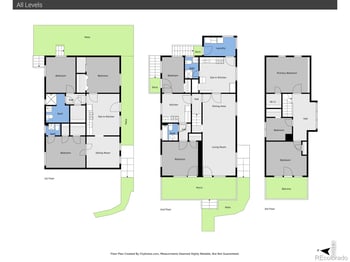
Listing details for 136 Old Post Office Rd, Boulder, CO 80302 : Welcome to Sweet Home Ranch. A rare opportunity to own a 40-acre Sugarloaf ranch offering exceptional privacy, open space, and proximity to Boulder, bordered by BLM land and National Forest. Fully fenced and surrounded by open meadows, aspen groves with live springs, evergreens, and mountain views, the setting feels expansive, peaceful, and worlds away from the everyday while remaining conveniently close to town. The Pueblo-style adobe residence showcases timeless craftsmanship with hand-troweled plaster walls, exposed log beams, and Saltillo tile floors sourced from New Mexico. The single-story layout is thoughtfully designed for comfortable living and entertaining, with light-filled interiors and seamless flow throughout. The kitchen features custom blue beetle-kill pine cabinetry, a large island with a farmhouse sink, updated appliances, and a hand-crafted copper range hood. Living and dining areas are enhanced by two Kiva-style fireplaces, creating warm and inviting gathering spaces. The main-level primary suite includes its own fireplace, sitting area, and five-piece bath with soaking tub. Two additional bedrooms, a formal study with built-ins, a spacious mudroom, and laundry room complete the interior. Outdoor amenities include an in-ground pool, access to riding trails, and equestrian facilities zoned for four or more horses, including a barn with three-plus stalls, pasture, loafing shed, hay storage, and an apartment above the barn. A detached oversized two-car garage with an upper-level studio adds versatility. Energy-efficient features include a solar PV system and solar thermal in-floor heating. This is truly a rare opportunity to own space, privacy, and enduring craftsmanship in one of Boulder County's most picturesque settings.
Listing Updated : 03-07-2026 at 1:16 PM MST
Home Details
136 Old Post Office Rd, Boulder, CO 80302
Status
Active
MLS #ID
RECIR1052119
Price
$2,995,000
Bedrooms
3
Bathrooms
3
Square Footage
4,122
Acres
40.12
Year
1984
Days on Site
21
Property Type
Residential
Property Sub Type
Single-Family
Price per Sq Ft
$727
Date Listed
Feb 20, 2026
Community Information for 136 Old Post Office Rd, Boulder, CO 80302
Address
136 Old Post Office Rd
State
Colorado
Zip Code 80302
County Boulder
Subdivision Sugarloaf Area
Schools
Elementary Flatirons
Middle Casey
School Districts
High School District Boulder Valley RE 2
Utilities
Sewer
Septic Tank
Water Source
Well
Interior
Interior Features
Eat-in Kitchen, Kitchen Island, Open Floorplan, Pantry and Walk-In Closet(s)
Appliances
Dishwasher, Disposal, Double Oven, Dryer, Microwave, Oven, Refrigerator, Trash Compactor and Washer
Heating
Hot Water, Propane, Radiant and Solar
Fireplace
No
Exterior
Exterior
Balcony and Dog Run
Roof
Membrane,Metal
Garage Spaces
2
Foundation
Slab
HOA
Has HOA
None
Additional Information
Styles
Price per Sq Ft
$727
Listing Provided By

Lindsey Hughes, 3034875472, Compass - Boulder

Source

recolorado, MLS#: RECIR1052119

Comments
Home Worth Check

Interested in 136 Old Post Office Rd, Boulder CO, 80302?

By proceeding, you consent to receive calls, texts and voicemails at the number you provided (may be recorded and may be autodialed and use prerecorded and artificial voices), and email, from The Kenna Real Estate Group about your inquiry and other home-related matters. Msg/data rates may apply. This consent applies even if you are on a do not call list and is not a condition of any purchase.

Location of 136 Old Post Office Rd, Boulder, CO 80302

Google Map
Mortgage Calculator
Listing Price
Down Payment
Interest Rate
This beautiful 3 beds 3 baths home is located at 136 Old Post Office Rd, Boulder, CO 80302 and is listed for sale at $2,995,000.00. This home was built in 1984, contains 4122 square feet of living space, and sits on a 40.12 acre lot. This residential home is priced at $726.59 per square foot.

If you'd like to request a tour or more information on 136 Old Post Office Rd, Boulder, CO 80302, please call us at 303-955-4220 so that we can assist you in your real estate search. To find homes like 136 Old Post Office Rd, Boulder, CO 80302, you can search homes for sale in Boulder , or visit the neighborhood of Sugarloaf Area , or by 80302 . We are here to help when you're ready to contact us!

Schools Near 136 Old Post Office Rd, Boulder, CO 80302

Home Details
136 Old Post Office Rd, Boulder, CO 80302
Status
Active
MLS #ID
RECIR1052119
Price
$2,995,000
Bedrooms
3
Bathrooms
3
Square Footage
4,122
Acres
40.12
Year
1984
Days on Site
21
Property Type
Residential
Property Sub Type
Single-Family
Price per Sq Ft
$727
Date Listed
Feb 20, 2026
Community Information for 136 Old Post Office Rd, Boulder, CO 80302
Address
136 Old Post Office Rd
State
Colorado
Zip Code 80302
County Boulder
Subdivision Sugarloaf Area
Schools
Elementary Flatirons
Middle Casey
School Districts
High School District Boulder Valley RE 2
Utilities
Sewer
Septic Tank
Water Source
Well
Interior
Interior Features
Eat-in Kitchen, Kitchen Island, Open Floorplan and Pantry
Appliances
Dishwasher, Disposal, Double Oven, Dryer, Microwave, Oven, Refrigerator and Trash Compactor
Heating
Hot Water, Propane and Radiant
Fireplace
No
Exterior
Exterior
Balcony and Dog Run
Roof
Membrane,Metal
Garage Spaces
2
Foundation
Slab
HOA
Has HOA
None
Additional Information
Styles
Price per Sq Ft
$727
Listing Provided By

Lindsey Hughes, 3034875472, Compass - Boulder

Source

recolorado, MLS#: RECIR1052119

Comments

Homes Similar to 136 Old Post Office Rd, Boulder, CO 80302

Thinking of Moving? Must Reads.

HomeBoulderSugarloaf Area
What's your home worth?
Have a top local Realtor give you a FREE Comparative Market Analysis
Hear From Happy Homeowners
See how we've helped others achieve their real estate goals.
280 reviews on