Back to Search
11778 Oneida St, Thornton, CO 80233
11778 Oneida St, Thornton, CO 80233
11778 Oneida St, Thornton, CO 80233
11778 Oneida St, Thornton, CO 80233
11778 Oneida St, Thornton, CO 80233
11778 Oneida St, Thornton, CO 80233
11778 Oneida St, Thornton, CO 80233

11778 Oneida St Thornton, CO 80233

$690,000

ACTIVE
Beds
4
Baths
4
Sqft
3,261
Acres
0.22
Year
2019
Days on Site
1
Property Type
Residential
Sub Type
Single Family
Per Square Foot
$212
Date Listed
Mar 2, 2026

Description of 11778 Oneida St, Thornton, CO 80233

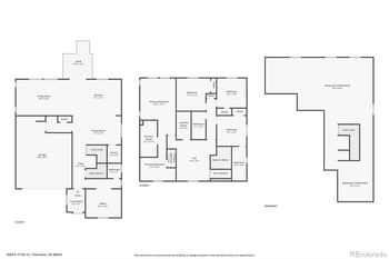
Listing details for 11778 Oneida St, Thornton, CO 80233 : Located in the highly sought after Mayfield community of Thornton. This spacious 4-bedroom, 3-bathroom home offers the perfect blend of comfort, flexibility, and room to grow. Step inside to discover an open and functional layout designed for both everyday living and entertaining. The main-level bedroom provides excellent flexibility and can easily serve as a private home office. Upstairs, a generous loft/family room offers additional living space ideal for movie nights, a play area, or a second lounge. The finished basement expands your options even further with a dedicated game room with a wet bar and a workout space creating the perfect setup for recreation and wellness at home. The kitchen features abundant cabinetry, truly cabinets for days offering exceptional storage and organization. Upstairs, the primary suite is thoughtfully equipped with its own dedicated air unit to ensure optimal comfort year-round. Step outside to an enormous backyard complete with privacy fencing, providing the ideal setting for entertaining, gardening, pets, or future expansion. With space for both fun and function, this home delivers versatility at every turn.
Listing Updated : 03-03-2026 at 03:45 AM EST
Home Details
11778 Oneida St, Thornton, CO 80233
Status
Active
MLS #ID
REC7222838
Price
$690,000
Bedrooms
4
Bathrooms
4
Square Footage
3,261
Acres
0.22
Year
2019
Days on Site
1
Property Type
Residential
Property Sub Type
Single-Family
Price per Sq Ft
$212
Date Listed
Mar 2, 2026
Community Information for 11778 Oneida St, Thornton, CO 80233
Address
11778 Oneida St
State
Colorado
Zip Code 80233
County Adams
Subdivision Mayfield
Schools
School Districts
High School District Adams 12 5 Star Schl
Utilities
Sewer
Public Sewer
Interior
Interior Features
Ceiling Fan(s), Eat-in Kitchen, High Ceilings, Kitchen Island, Pantry, Primary Suite, Radon Mitigation System, Smoke Free, Walk-In Closet(s) and Wet Bar
Appliances
Cooktop, Dishwasher, Disposal, Microwave, Oven, Range, Range Hood and Refrigerator
Heating
Forced Air
Cooling
Central Air
Fireplace
No
Exterior
Exterior
Private Yard
Roof
Shingle
Garage Spaces
2
Foundation
HOA
Has HOA
None
Additional Information
Styles
Price per Sq Ft
$212
Listing Provided By

Estrella Gallegos, 720-807-2890, Real Broker, LLC DBA Real

Source

recolorado, MLS#: REC7222838

Comments
Home Worth Check

Interested in 11778 Oneida St, Thornton CO, 80233?

By proceeding, you consent to receive calls, texts and voicemails at the number you provided (may be recorded and may be autodialed and use prerecorded and artificial voices), and email, from The Kenna Real Estate Group about your inquiry and other home-related matters. Msg/data rates may apply. This consent applies even if you are on a do not call list and is not a condition of any purchase.

Location of 11778 Oneida St, Thornton, CO 80233

Google Map
Mortgage Calculator
Listing Price
Down Payment
Interest Rate
This beautiful 4 beds 4 baths home is located at 11778 Oneida St, Thornton, CO 80233 and is listed for sale at $690,000.00. This home was built in 2019, contains 3261 square feet of living space, and sits on a 0.22 acre lot. This residential home is priced at $211.59 per square foot.

If you'd like to request a tour or more information on 11778 Oneida St, Thornton, CO 80233, please call us at 303-955-4220 so that we can assist you in your real estate search. To find homes like 11778 Oneida St, Thornton, CO 80233, you can search homes for sale in Thornton , or visit the neighborhood of Mayfield , or by 80233 . We are here to help when you're ready to contact us!

Schools Near 11778 Oneida St, Thornton, CO 80233

Home Details
11778 Oneida St, Thornton, CO 80233
Status
Active
MLS #ID
REC7222838
Price
$690,000
Bedrooms
4
Bathrooms
4
Square Footage
3,261
Acres
0.22
Year
2019
Days on Site
1
Property Type
Residential
Property Sub Type
Single-Family
Price per Sq Ft
$212
Date Listed
Mar 2, 2026
Community Information for 11778 Oneida St, Thornton, CO 80233
Address
11778 Oneida St
State
Colorado
Zip Code 80233
County Adams
Subdivision Mayfield
Schools
School Districts
High School District Adams 12 5 Star Schl
Utilities
Sewer
Public Sewer
Interior
Interior Features
Ceiling Fan(s), Eat-in Kitchen, High Ceilings, Kitchen Island, Pantry, Primary Suite, Radon Mitigation System, Smoke Free and Walk-In Closet(s)
Appliances
Cooktop, Dishwasher, Disposal, Microwave, Oven, Range and Range Hood
Heating
Forced Air
Cooling
Central Air
Fireplace
No
Exterior
Exterior
Private Yard
Roof
Shingle
Garage Spaces
2
Foundation
HOA
Has HOA
None
Additional Information
Styles
Price per Sq Ft
$212
Listing Provided By

Estrella Gallegos, 720-807-2890, Real Broker, LLC DBA Real

Source

recolorado, MLS#: REC7222838

Comments

Homes Similar to 11778 Oneida St, Thornton, CO 80233

Thinking of Moving? Must Reads.

HomeThorntonMayfield
What's your home worth?
Have a top local Realtor give you a FREE Comparative Market Analysis
Hear From Happy Homeowners
See how we've helped others achieve their real estate goals.
280 reviews on